EMAIL: info@pricecustomhomes.com
PHONE: (740) 756-7400
OFFICE: 3805 Columbus-Lancaster Rd NW Carroll, Ohio 43112
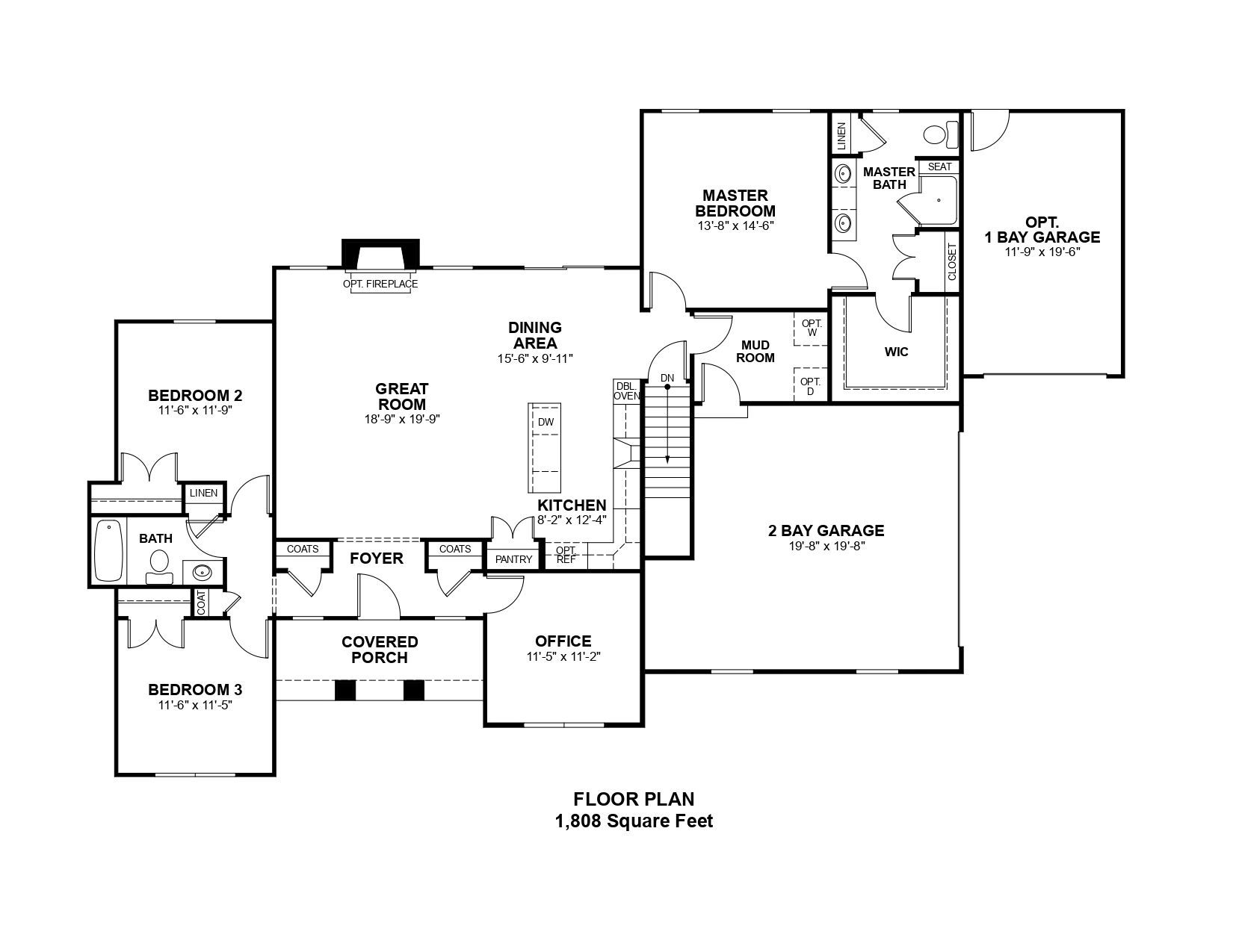
3 BEDROOMS
2 BATHROOMS
1,808 SQUARE FEET
TBA
info@pricecustomhomes.com
(740) 756-7400
3805 Columbus-Lancaster Rd NW Carroll, Ohio 43112
© | All Rights Reserve | Site By